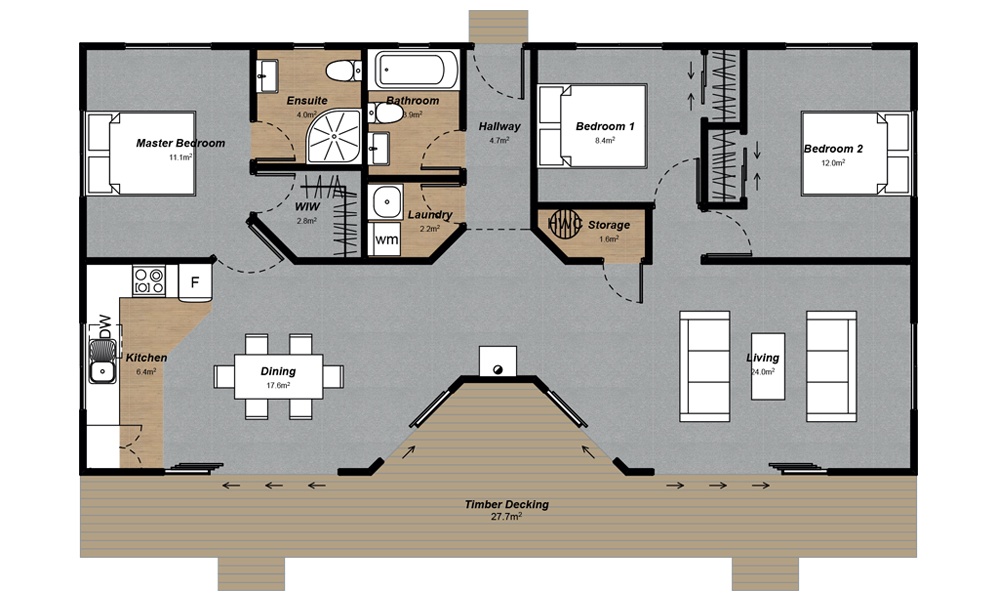
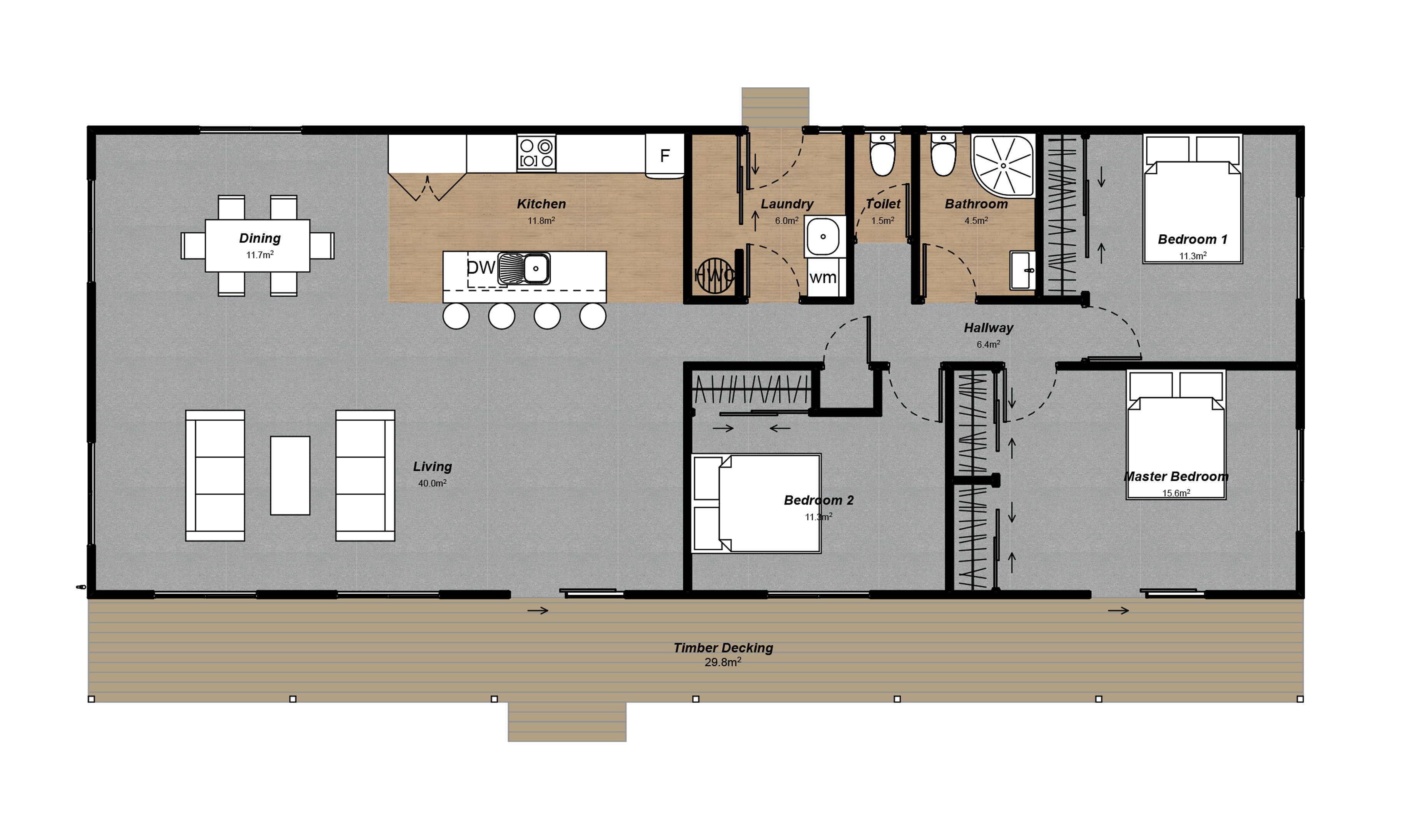
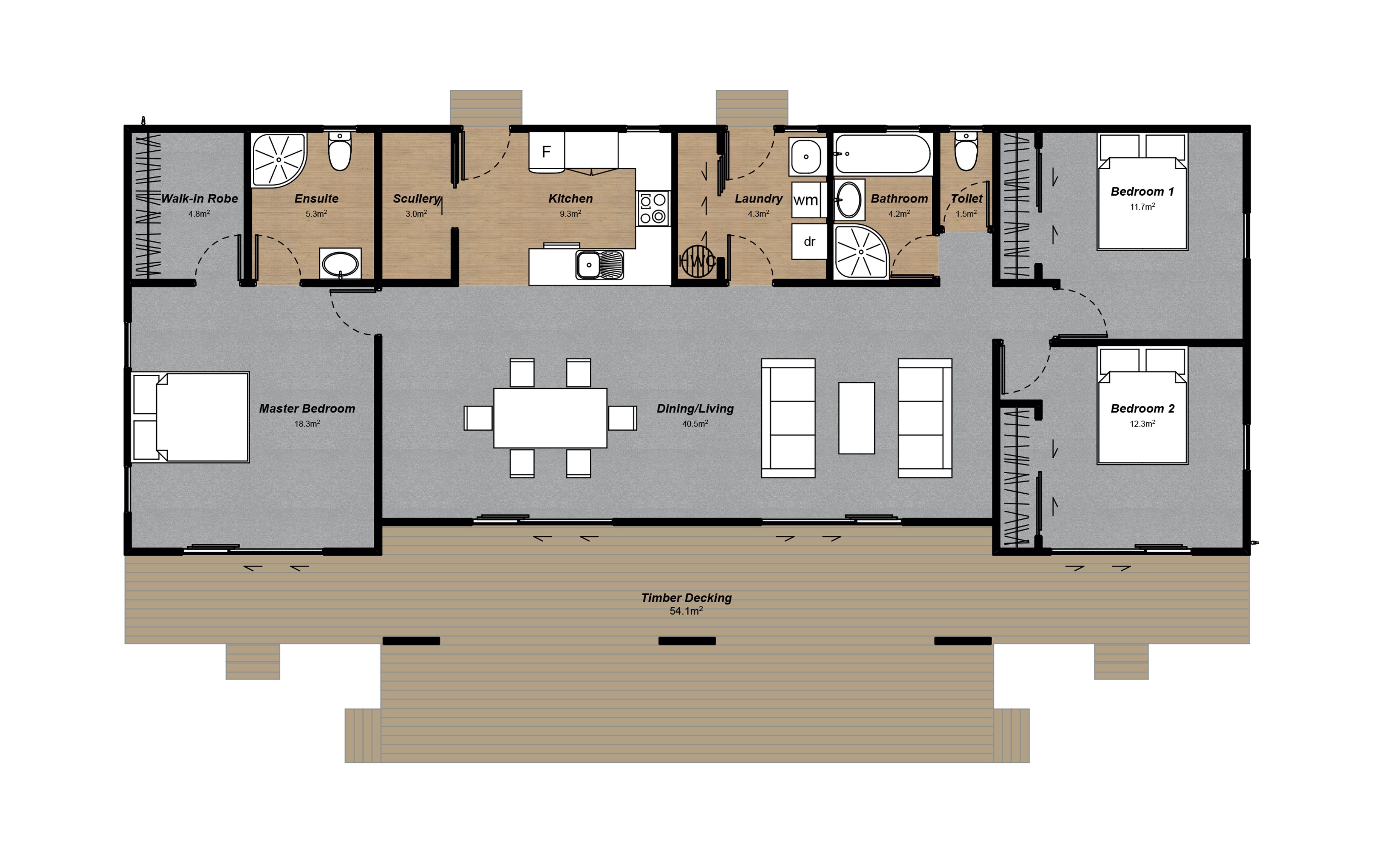
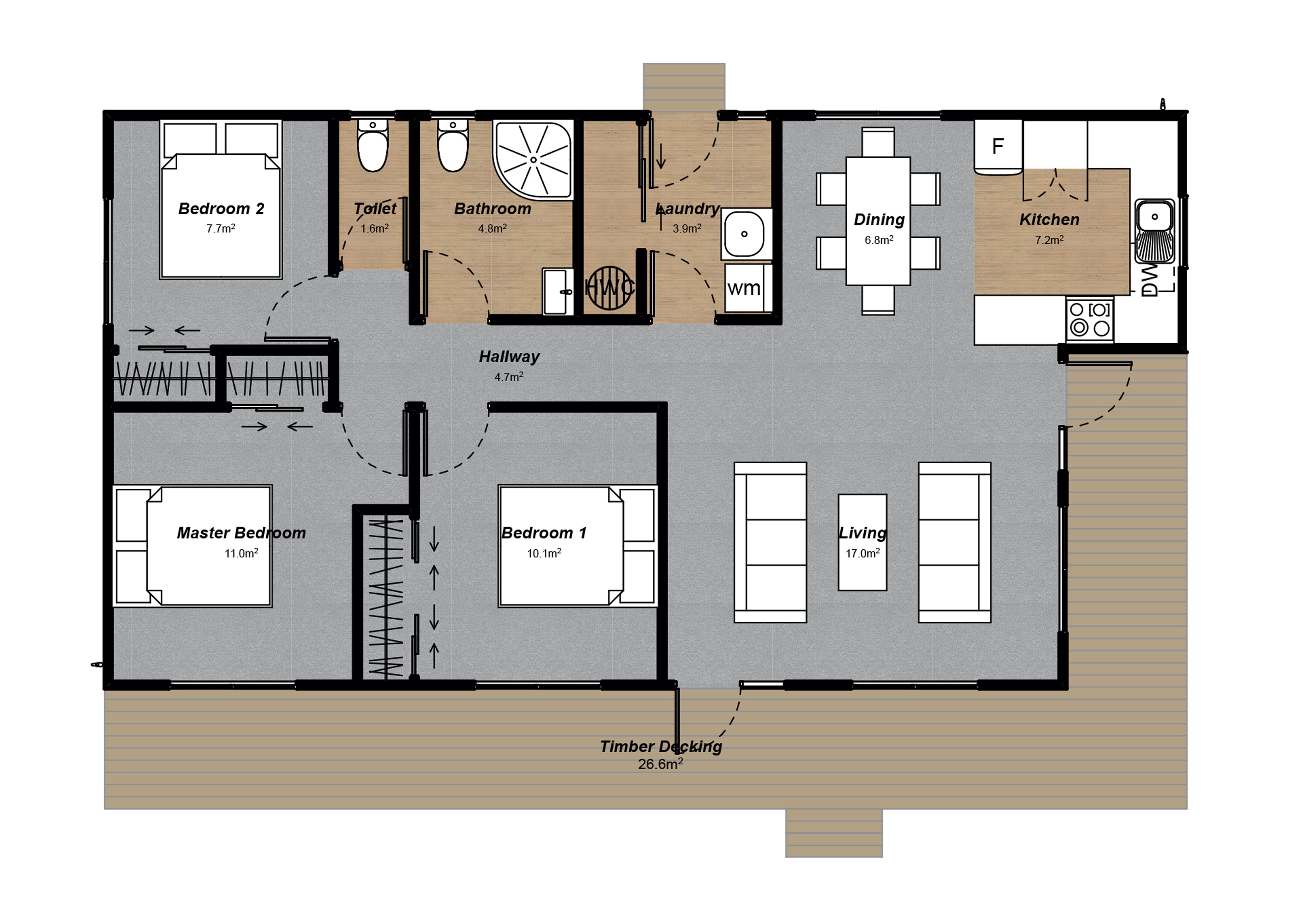
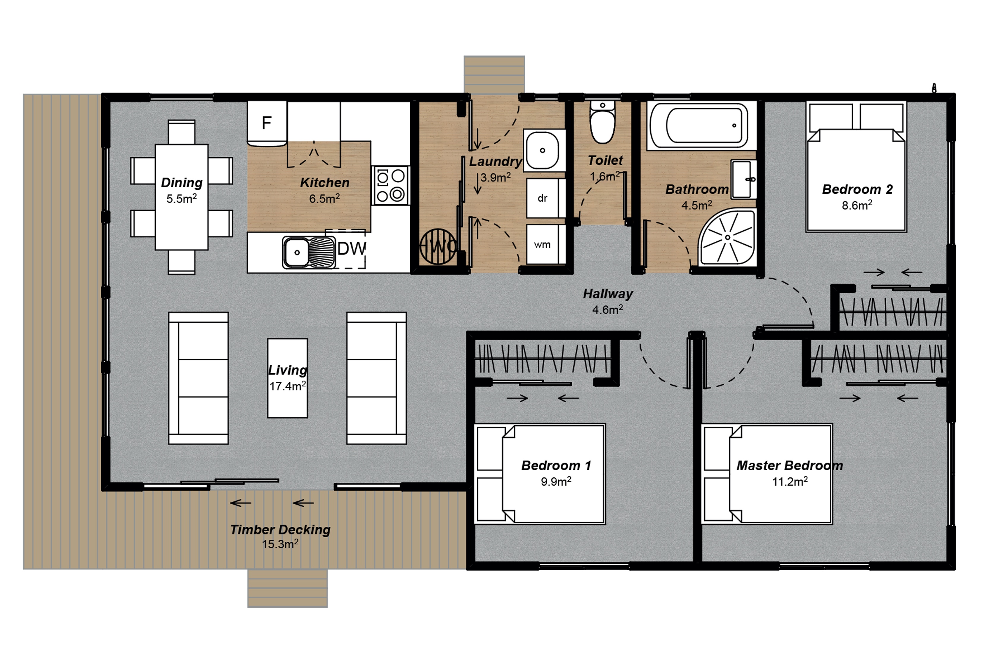
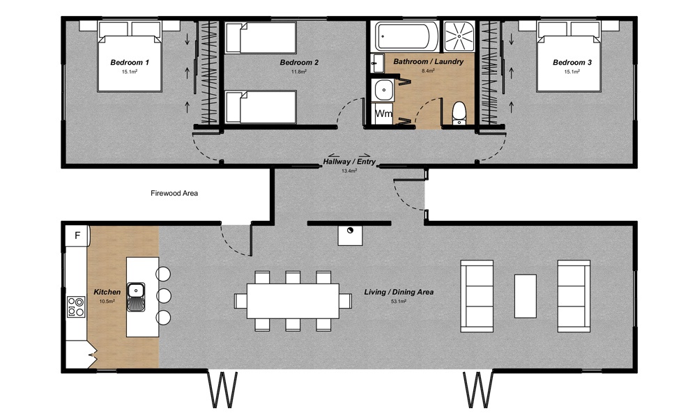
3 Bedroom Designs
With plenty of room for a growing family, home office, or guests, these 3-bedroom homes offer a spacious living environment to accommodate your changing needs. Explore the range below for a layout tailored to you and your family.

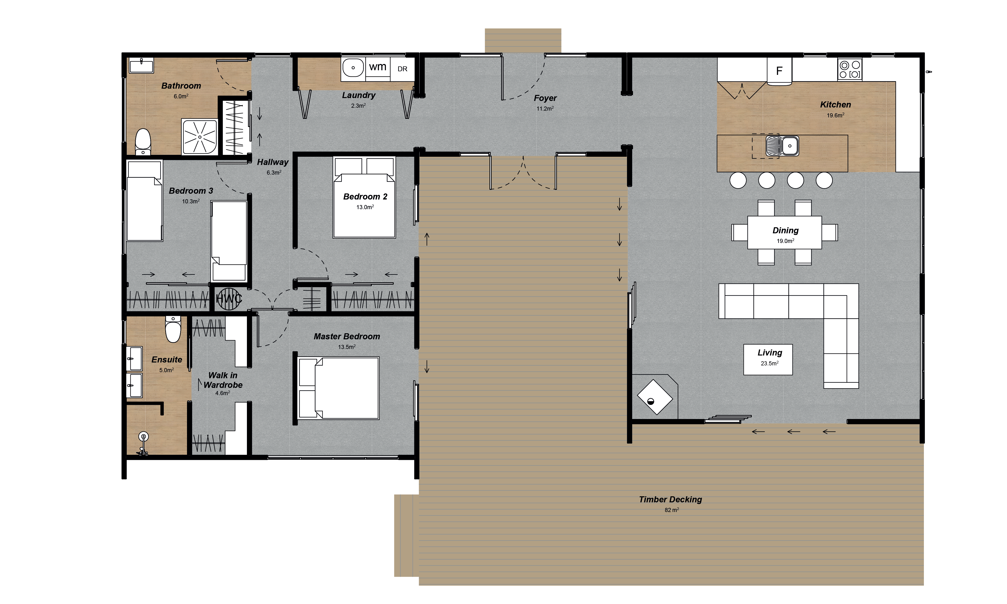
3 Bedroom Designs
With plenty of room for a growing family, home office, or guests, these 3-bedroom homes offer a spacious living environment to accommodate your changing needs. Explore the range below for a layout tailored to you and your family.
Want to know more?
Our team is available to answer any questions you have, on any aspect of a prefab build, including design customisations, managing the consent process, building transportation, site works and landscaping. Get in touch via the form below.











